Price
$22,000
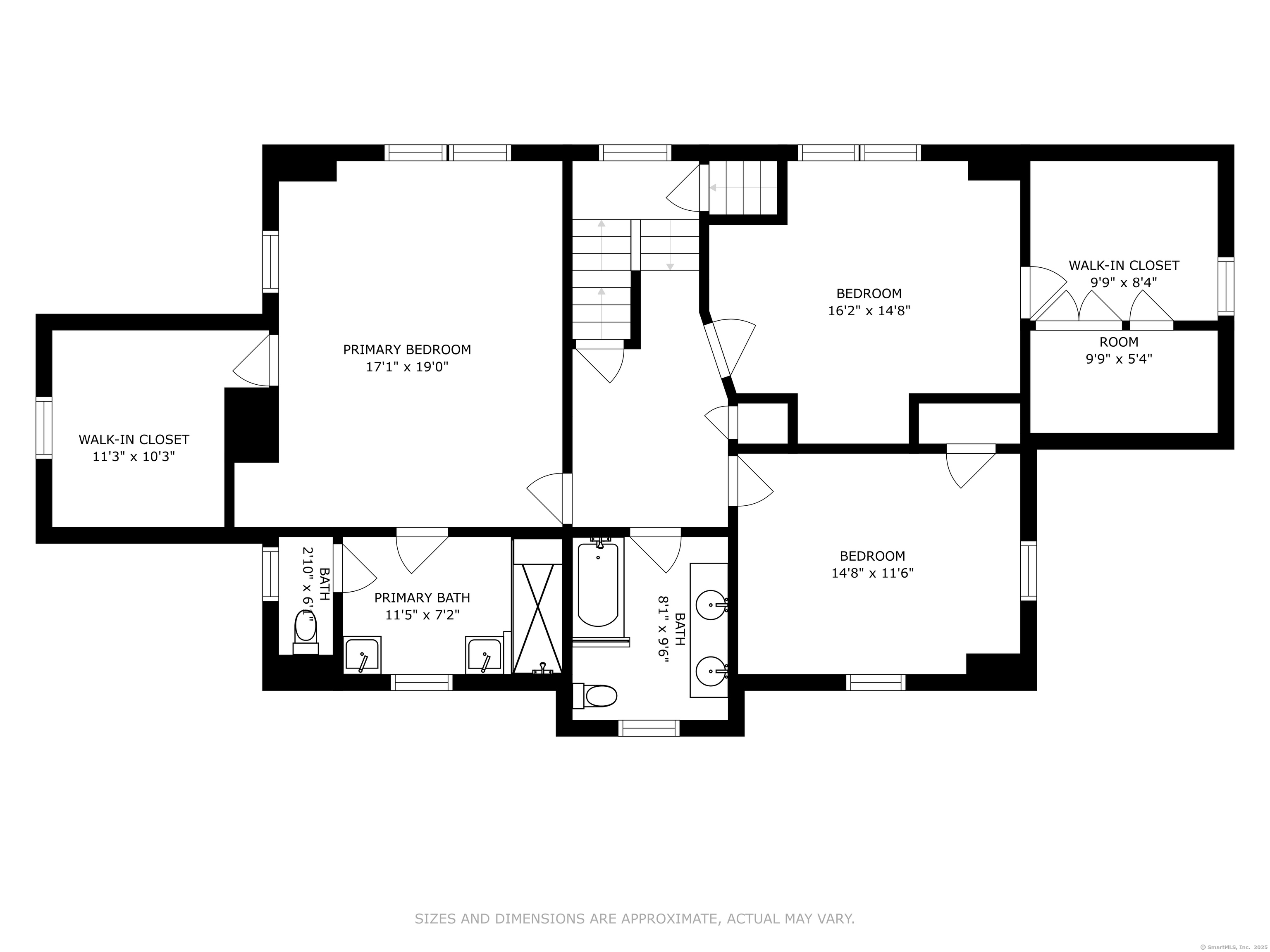
Beautifully renovated and modernized in 2022, this classic Tudor on one of Greenwich's premier in-town streets is located just moments from schools, train, shops, and the hospital. Inside, discover a new kitchen, restored hardwood floors, updated lighting, and graceful arches that create a seamless flow throughout. The primary suite offers a newly renovated bath and spacious dressing room, while 4 additional bedrooms and 2 updated baths complete the 2nd and 3rd floors. The pristine lower level includes exterior access, laundry, generous storage, a 1-car attached garage, and a separate 2-car detached garage. Outside, a stone terrace overlooks lush, level lawns and beautifully landscaped gardens, creating a vibrant display of blooms throughout the seasons offering exceptional privacy.
Listed by Compass Connecticut, LLC, Jennifer Leahy. Data sourced from SmartMLS