90 Grove Street Unit #STE 105

Ridgefield, Connecticut 06877

Status
For Sale
Square Feet
1,443
Beds
0
Price
$252,525
Type
Commercial For Sale
Garages
Baths
0
MLS
24155819

Price

$252,525

Contact an Agent

Interior Details

Interior Size
1,443 Sq Ft
Bedrooms
0
Bathrooms
0
Rooms Total
Garage

Exterior Details

Lot Size
1.00 Acres
Roof
Flat
Sewer
Public Sewer Connected
Construction
Construction
Cooling
Central Air

Other Information

Property Tax
$4,858
Assessed Value
$177,380
Elementary School
NULL
Middle School
NULL
High School
NULL

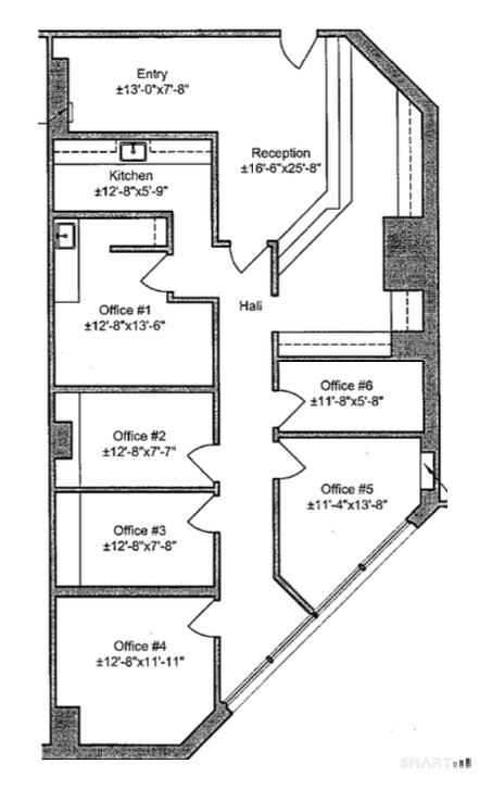
About Property

First floor medical office space of 1,443 SF delivered with current lessee of ophthalmology business with a gross rent of $42,300/year. The Executive Pavilion at 90 Grove Street is a highly regarded professional office building located in the heart of downtown Ridgefield. Just steps from Main Street, the property offers walkable access to premier restaurants, cafes, banks, retail boutiques, and municipal services, creating an exceptional environment for both tenants and clients. The building features elevator access, professional property management, and an on-site fitness center, providing convenience and added value for occupants. A diverse and established tenant mix including professional services, consultants, medical providers, and boutique firms, creates a dynamic and collaborative business atmosphere. With its central location, strong tenant community, quality amenities, and reputation as one of Ridgefield's premier business addresses, The Executive Pavilion offers an ideal setting for companies seeking both visibility and professionalism in downtown Ridgefield.
Listed by Keller Williams Realty, Ryan Kundrat. Data sourced from SmartMLS

Schedule Showing