121 South Main Street

Plymouth, Connecticut 06786

Status
For Rent
Square Feet
2,755
Beds
1
Price
$1,450
Type
Residential Rental
Garages
2
Baths
1
MLS
24162389

Price

$1,450

Contact an Agent

Interior Details

Interior Size
2,755 Sq Ft
Bedrooms
1
Bathrooms
1
Rooms Total
Garage
2

Exterior Details

Lot Size
1.42 Acres
Roof
NULL
Sewer
Septic
Construction
Construction
Cooling
Central Air

Other Information

Property Tax
$0
Assessed Value
$0
Elementary School
Per Board of Ed
Middle School
NULL
High School
Per Board of Ed

About Property

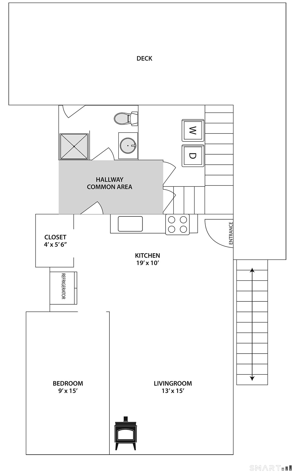
1 bedroom, 1 bathroom apartment. Square footage is actually 525. Great location. Less than 15 minutes to the center of Waterbury. ALL UTILITIES, CABLE AND INTERNET ARE INCLUDED WITH THE RENT. The only thing you will be responsible for is propane which is used for the oven and, in the winter, clear the snow from your car. Great apartment with green tile floors and a fantastic wood stove. Great bathroom with a beautiful shower. To get to the bathroom, you must walk thru a small common area, however, it is your own bathroom. Also included are 2 parking spaces and use of the deck and backyard. Its a very private location with beautiful views.
Listed by William Raveis Real Estate, Nancy Smetana. Data sourced from SmartMLS


Included Appliances

Schedule Showing