Southington, Connecticut 06489
Price
$869,000
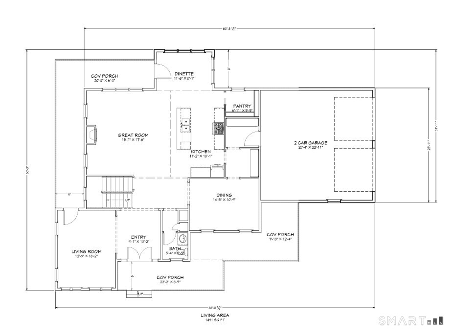
New construction to be built in Southington, CT!! Welcome to Evergreen Estates, a limited collection of luxury homes set within a private cul-de-sac in one of Hartford County's most desirable markets. The Hemlock, A 4-bedroom, 2.5-bath Colonial offering 2,789 square feet is designed for today's buyer who values both elevated design and everyday functionality. The main level features a seamless open-concept layout with a spacious kitchen complete with pantry, expansive living area, and dedicated dining space, ideal for entertaining while still feeling refined and intentional. Upstairs, the primary suite serves as a true retreat with dual walk-in closets and a well-appointed bath, while three additional bedrooms provide flexibility for guests, a home office, or evolving lifestyle needs. 2nd floor laundry room, dramatic 9 foot ceilings and hardwood floors without, and exceptional attention to detail. Positioned in a highly sought-after Southington location, Evergreen Estates offers the rare combination of new construction homes in an established neighborhood setting, just minutes from downtown Southington, local dining, shopping, the Farmington Canal Heritage Trail, and convenient access to I-84 and I-691 for an easy commute and accessibility. With limited inventory, strong local demand, and a location that continues to perform, this community represents both a lifestyle upgrade and a smart long-term investment. With only 12 lots available, don't miss your chance!!
Listed by Serhant Connecticut, LLC, Rachael Cisz. Data sourced from SmartMLS